Отдельностоящее здание
Аэрофлот садовое товарищество (Томский район), 232 Показать на карте
Аэрофлот садовое товарищество (Томский район), 232 Показать на карте
Аэрофлот садовое товарищество (Томский район)
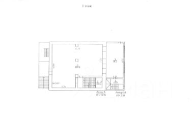
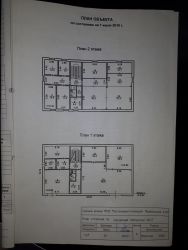
АУКЦИОН. Объект реализуется на торгах в электронной форме.Предлагается к покупке офисные помещения, включающие: четыре нежилых помещения общей площадью 2 256, 8 кв. м, нежилое здание (гараж) общей площадью 875, 6 кв. м, два земельных участка общей площадью 6 023 кв. м и движимое оборудование.Адрес: Томская область, г. Томск, пр-кт Фрунзе, 232, 232/1.Административное 4-этажное кирпичное здание (пр. Фрунзе, д. 232):Нежилые помещения общей площадью 2 256, 8 кв. м (1, часть 2, 3 и 4 этажи)Кадастровые номера: 70:21:0200013:9605, 70:21:0200013:9608, 70:21:0200013:9606, 70:21:0200013:9607Часть второго этажа (109, 6 кв. м) находится в собственности Департамента по недропользованиюЗдание расположено на земельном участке площадью 4 487 кв. м (кад. 70:21:0200013:9155), находящемся в аренде на 49 лет (до 17. 02. 2068 г. ) у АО ''СНИИГГиМС'' и Департамента по недропользованию.Двухэтажное кирпичное строение (теплый гараж, пр. Фрунзе, д. 232, стр. 1):Общая площадь: 875, 6 кв. мКадастровый номер: 70:21:0200013:1212Единственный собственник: АО ''СНИИГГиМС''Расположено на земельном участке площадью 1 536 кв. м (кад. 70:21:0200013:9156), находящемся в собственности АО ''СНИИГГиМС''.Узлы учета и все коммуникации (электроснабжение, отопление, канализация, водоснабжение) находятся в собственности АО ''СНИИГГиМС'' и обеспечивают оба здания.Выделенные энергомощности: Ресурсоснабжающими организациями установлены следующие лимиты потребления для зданий:Вода: 820 куб. м в год (что эквивалентно 0, 094 куб. м в час).Тепловая энергия: 0, 3429 Гкал/ч.Электрическая энергия: 55 кВт.Объект расположен в восточной части Советского района, в историческом районе ''Опытное поле'', на первой линии улицы Фрунзе одной из главных магистралей Томска.Равноудаленность от исторического центра и различных крупных микрорайонов (Академгородок, Академический, Заречный), а также близость к Особой экономической зоне технико-внедренческого типа ''Томск'' и ''Южной площадке'', делает объект привлекательным для широкого круга потенциальных арендаторов. Это позволяет рассчитывать на стабильный и высокий арендный спрос.Наличие двух въездов с проспекта Фрунзе, а также обширных парковочных площадок (около 2 соток напротив главного здания и около 10 соток у гаража), значительно повышает удобство использования объекта как для сотрудников, так и для посетителей. Близость остановок общественного транспорта с более чем 10 маршрутами дополнительно усиливает транспортную доступность.В настоящее время частично сдано в аренду (1 336, 8 кв. м 37 арендаторам).Ознакомиться с документацией можно на электронной торговой площадке Росэлторг.Ссылка на торги: https://www. roseltorg. ru/procedure/COM06032600021/1Подать заявку на участие в торгах можно до 05. 04. 2026, 23:59 (МСК).Начальная цена объекта: 138 923 126, 75 руб.
3132 м2
- Показать контакты
- Добавить в избранное
3132 м2
138 923 126
44 350 /м2
