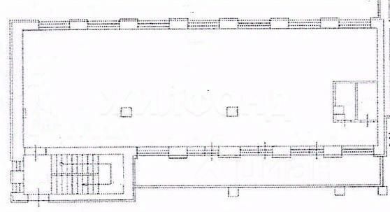
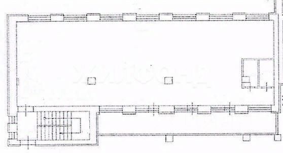
Помещение свободного назначения. Возможно испльзовать под гостиницу, хостел, и любой другой вид
деятельности. Есть парковка на
10-12 авто, терасса.
Помещение находится в нежилом здании. Рядом с объектом расположены все социально значимые объекты,
в шаговой доступности
остановки
общественного транспорта, магазины и многое другое. Помещение в собственности, документы готовы к
продаже.
JC000060080042










