В избранном
В избранное
Пожаловаться
Напечатать
Следить за ценой

продам земельный участок, Аэрофлот садовое товарищество (Томский район)13 400 000 ₽

27 фев
Обн. 27 фев
2 680 000 ₽/сотку

    Параметры

    • Площадь участка5 соток
    • Канализациянет
    • Водаесть
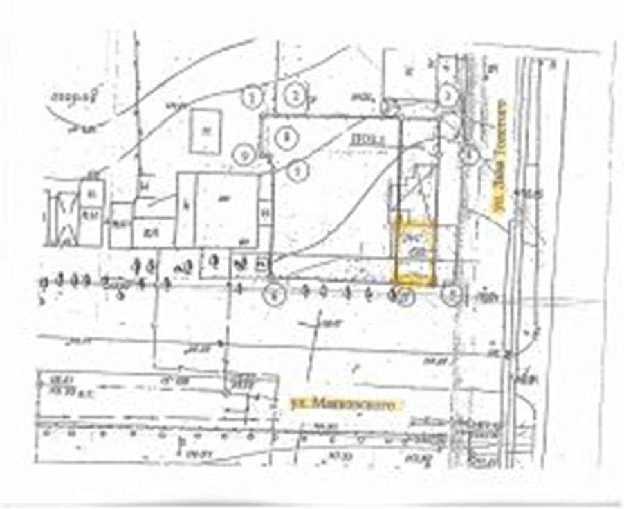
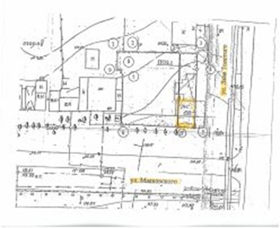
    Предлагается земельный участок. Предназначен для строительства жилой застройки, площадью 489 кв.м, расположен по улице Л. Толстого 43. В собственности находится от 25.07.2006 года. На данном участке стоит жилой дом, общей площадью 23,3 кв. м. В собственности находится от 06.05.1992 года. Электричество и водоснабжение централизованные. Газ подведен к самому дому. Обременения прав не зарегистрированы.