Термин "Чистая продажа" означает, что в квартире никто не прописан или
есть куда выписаться и вывезти вещи. Это лучший вариант для покупателя.
Вероятность срыва сделки минимальна.
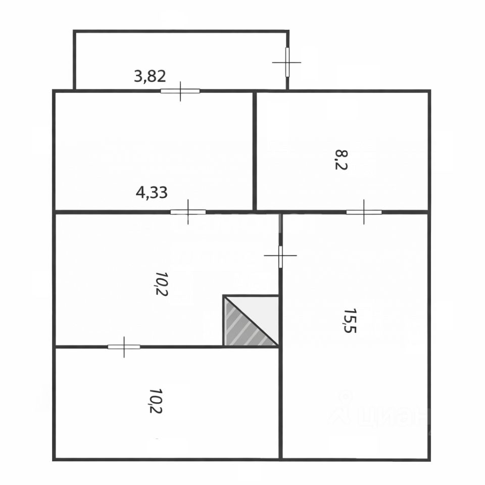
Квартира
Общая площадь43,9 м2
Жилая площадь28,7 м2
Кухня10,2 м2
Дом
Этаж1 из 1
Материал домадерево
Арт. 132155808 Тишина и уют, доступность города — идеальное сочетание для вашей новой жизни! Представляем вашему вниманию уютную 3-комнатную квартиру в живописном районе. Это не просто квартира, это настоящий дом вашей мечты: Простор и комфорт: Несмотря на то, что это часть деревянного дома на двух хозяев, по документам это полноценная 3-комнатная квартира, готовая к вашему переезду. Собственный уголок природы: К квартире прилагается ухоженный земельный участок с ароматными цветами и плодовыми насаждениями. Есть возможность оформить его в собственность и создать свой райский сад! Все для загородной жизни: Баня, гараж и дровник — все это уже есть и ждет нового хозяина. Отличная транспортная доступность: Всего 1 минута пешком до автобусной остановки!
Арт. 132155808 Тишина и уют, доступность города — идеальное сочетание для вашей новой жизни! Представляем вашему вниманию уютную 3-комнатную квартиру в живописном районе. Это не просто квартира, это настоящий дом вашей мечты: Простор и комфорт: Несмотря на то, что это часть деревянного дома на двух хозяев, по документам это полноценная 3-комнатная квартира, готовая к вашему переезду. Собственный уголок природы: К квартире прилагается ухоженный земельный участок с ароматными цветами и плодовыми насаждениями. Есть возможность оформить его в собственность и создать свой райский сад! Все для загородной жизни: Баня, гараж и дровник — все это уже есть и ждет нового хозяина. Отличная транспортная доступность: Всего 1 минута пешком до автобусной остановки! До площади Южной вы доберетесь всего за 10 минут. Вы будете жить в тишине и спокойствии, но всегда оставаться на связи с городом. Эта квартира — идеальный вариант для тех, кто ценит тихое жилье, мечтает о собственном участке земли и при этом хочет иметь удобный доступ ко всей городской инфраструктуре. Не упустите свой шанс! Звоните прямо сейчас, чтобы узнать все подробности и договориться о просмотр